
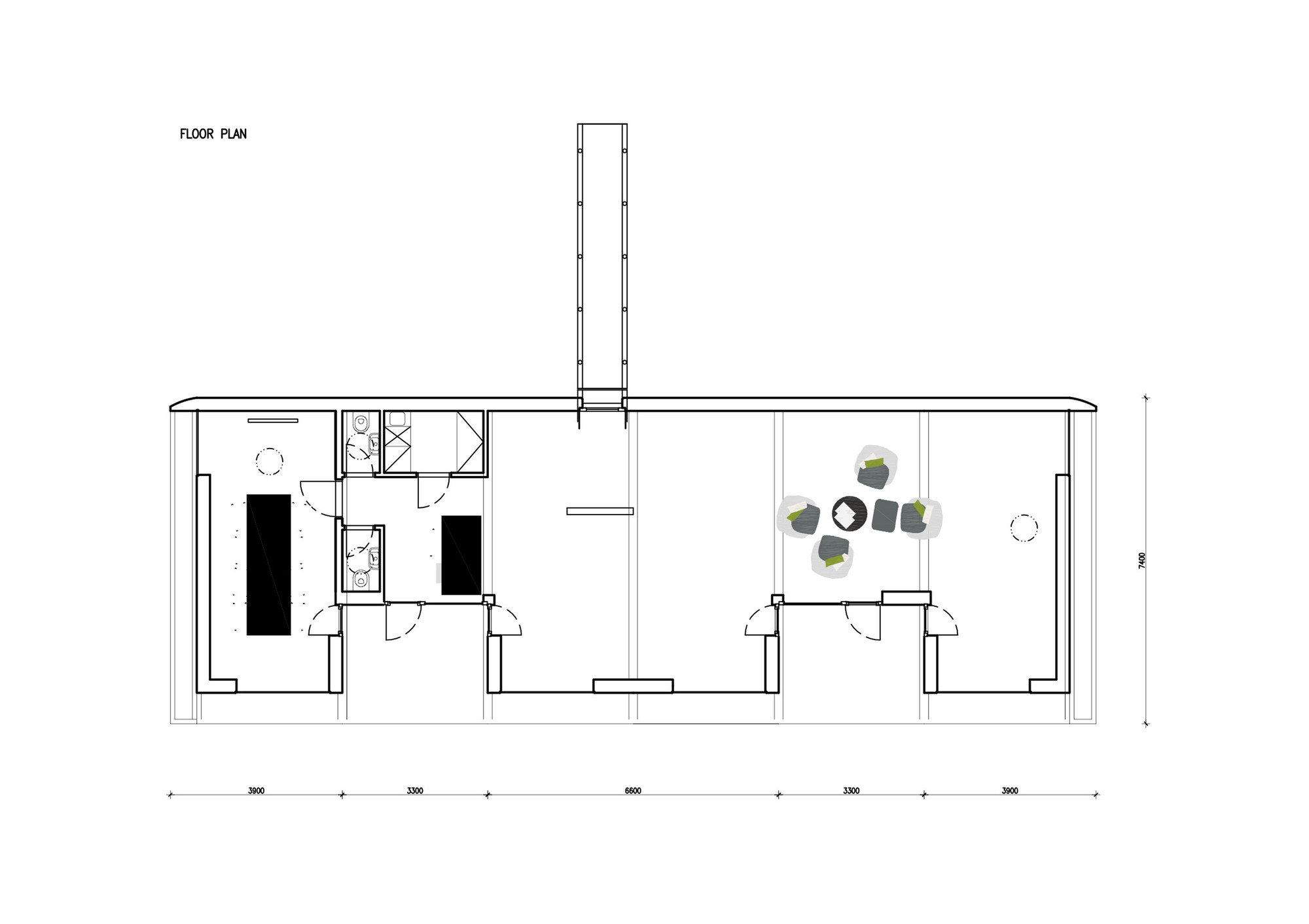
Is it a house? Is it a houseboat? The answer to both questions is yes! This is the amphibious Port X designed by architect Adam Jirkal for Prague’s Atelier SAD. Constructed from six C-shaped segments made out of insulated composite, the structure is completely modular, meaning you can purchase as many of them as you like and configure them however you want.
“The main idea is that you can connect and expand,” says architect Jerry Koza. “You can live in three modules, then add another for a studio or a meeting room. As lives change, after five or six years on the river, or, say, your child leaves home, you can move it into the mountains near the slopes. It’s about freedom.”
-Architect Jerry Koza
Starting at about $62K, Port X is very affordable, and lightweight enough to be easily transported to the spot of your choosing. And they are designed to be wired for use either on or off the grid. Unlike traditional houseboats, it has no engine, which enables the structure to sit fairly low in the water. This design makes it suitable for even lower-water-depth locations.
Practicality aside, I think the book-like shape of the structure combined with the sleek-but-warm interiors is absolutely gorgeous. I’m going to have a hard time keeping Beloved from running right out and buying one. For that matter, their flexible design is giving me ideas for a communal living project with which I’m always tinkering…
You can visit Atelier SAD on their website.
All images property of Atelier SAD.













March 10, 2019 at 7:16 am
At one time, maybe still now, there was a TV program about houses that sat on the water. I remember one fantastic design that even had a basement and a window in the water….
LikeLiked by 1 person
March 10, 2019 at 4:18 pm
That sounds very cool! We couldn’t have something like that here, though. The water isn’t deep enough. Your basement would be in the mud all the time.
LikeLike
March 10, 2019 at 7:24 am
What a fantastic design! Would feel like you were on vacation permanently
LikeLiked by 1 person
March 10, 2019 at 4:18 pm
I had that same thought!
LikeLike
March 10, 2019 at 8:35 am
I’m not really into modern but all of that wood is beautifu. We once dreamed of houseboat living and traveling the intercoastal and then RVing the interior.
LikeLiked by 1 person
March 10, 2019 at 4:18 pm
What a great idea! That would be a helluva blog…
LikeLiked by 1 person
March 10, 2019 at 10:03 am
Beautiful and amazing
LikeLiked by 1 person
March 10, 2019 at 4:19 pm
I agree! I’m a little obsessed with this one.
LikeLike
March 10, 2019 at 5:53 pm
Love it’s use of light and curves. It’s far more appealing than most house boats.
LikeLiked by 1 person
March 10, 2019 at 6:25 pm
It truly is. So much open space! I think it would feel much less confined than most of them.
LikeLiked by 1 person